電話:0373-2682333
手機:15836198876
郵箱:cndahan@163.com
聯系人:李經理
服務熱線:0373-268 2333
簡介:面粉振動篩分機是使用304不銹鋼材質制造生產的不銹鋼振動篩分機。304不銹鋼完全達到了食品行業的衛生標準,因此使用不銹鋼振動篩分機完全不會對物料進行污染,以到達食品級衛生標準。
電話:0373-2682 333

面粉是一種由小麥磨成的粉末。按面粉中蛋白質含量的多少,可以分為高筋面粉、中筋面粉、低筋面粉及無筋面粉。面粉(小麥粉)是中國北方大部分地區的主食。
面粉生產工藝:
原糧→除雜→篩選→磨粉→除雜→打包→入庫
在面粉生產過程中,有幾項重要的生產工藝離不開振動篩的使用。
首先,面粉原料小麥的篩選、除雜,經過這兩項以后才能篩選除適合的小麥原料。在這項中根據客戶的需求定制合適的振動篩進行除雜、篩選。在這里大漢振動篩廠家推薦您用直線振動篩進行這項工序,振動篩分機相對于普通的旋振篩對顆粒型的物料有產量大的特點,對于效率化的生產工廠來說是非常正確的選擇。
其次,小麥原糧經過除雜篩選磨粉后進行除雜篩選工序中,振動篩分機同樣是重要的生產工具。在這項中根據客戶的需求,大漢振動篩分機廠家推薦您用不銹鋼振動篩分機。不銹鋼振動篩分機是使用304不銹鋼材質制造生產的不銹鋼振動篩分機。304不銹鋼完全達到了食品行業的衛生標準,因此使用不銹鋼振動篩分機完全不會對物料進行污染,以到達食品級衛生標準。振動篩分機精密篩分,處理量大、易與生產線結合,是面粉除雜篩分的最好選擇。以下詳細介紹一下振動篩分機的特性。
(1)外型美觀耐用。
(2)體積小,不占空間,移動方便。
(3)耗能低,效率高。
(4)拆裝方便,內外部易清理,無衛生死角,符合食品、醫藥行業規范。
(5)自動化作業,可24小時連續生產
(6)低靜音設計。
(7)密封嚴謹,液體不泄漏,粉塵不飛揚。
(8)可單層、多層使用,一次多級篩選。
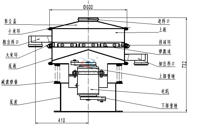
面粉振動篩分機由直立式振動電機作為激振源,電機上、下兩端安裝有偏心重錘,將電機的旋轉運動轉變為水平、垂直、傾斜的三次元運動,再把這個運動傳遞給篩面進行篩分。調節上、下兩端的相位角,可以改變物料在篩面上的運動軌跡。
(一)設備應有穩定的基礎。當設備安裝于一般地面或水泥基礎上時,可以不設置地腳螺栓。當設備安裝于鋼結構架臺之上時,應用螺栓緊固于結構體上,而且鋼結構架臺應有一定的鋼度。
本機只需三相開關一只(備注:最好使用電氣控制盤),用蛇皮管穿線,將電機接至電源即可,注意電氣控制盤應懸掛安裝于墻上。
(二)設備出廠前已將篩網裝妥,使用過程中的篩網更換可自己更換。
(三)開機前,應先檢查各壓緊螺栓的緊固程度,及各料口的位置是否與接料器對正,并觀察振動電機是否能正常轉動及彈簧受力有無阻礙,檢查各層篩網是否壓緊。
(四)當旋振篩接入電氣控制盤之前,應首先對電氣控制盤進行檢查。線路接通后觀察振動電機旋轉方向是否是順時針方向, (備注:否則應改變相序)運轉是否正常,有無異噪聲。
(五)調節振動電機上下偏心塊的相位角,以適應各種物料篩分情況。
電話:0373-2682333
手機:15836198876
郵箱:cndahan@163.com
聯系人:李經理
Copyright ? 2007-2020 新鄉市大漢振動機械有限公司 | All Rights Reserved
備案序號:豫ICP備09002479號-29